Продажа квартир и комнат

Комнаты
Например: Массальского, 4
Ванные
1-х комнатная квартира

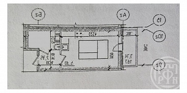
Кузьмолово дер. м.Девяткино


33.6 м2
Общая
18.7 м2
Жилая
5.4 м2
Кухня
Продается 1к.кв площадью 33,6 м², в поселке с развитой инфраструктурой Кузьмолово. Площадь комнаты составляет 18,7 м², кухня-5,4 м². В квартире раздельный санузел, что для однокомнатных квартир большой плюс. Так же имеется застекленный балкон. С отоплением проблем нет, в помещении очень тепло. Вода так же чистая, напор хороший. Требуется косметический ремонт. В доме недавно произвели кап.ремонт, в подъезде есть мусоропровод. Поселок очень быстро развивается, занимаются его благоустройством, сделали красивые скверы, дорожки. Рядом находится дет.сад, школы (начальная и средняя), муз.школа, ДК, стадион. Есть множество продуктовых магазинов и кафе.Так же в пешей доступности есть карьер, где можно купаться. В 5 минутах ходьбы располагается Ж/Д станция Кузьмолово ( до ст.Девяткино время в пути составляет 15 мин), тут же есть остановки общественного транспорта. На машине можно добраться до города за 25 мин.
Цена
4 250 000 ₽

1-х комнатная квартира

Евгения Шварца аллея м.Девяткино


42 м2
Общая
12.4 м2
Жилая
18.1 м2
Кухня
Продается однокомнатная квартира 42 квадратных метра на первом этаже в ЖК `Новая Охта` в доме 2019 года постройки. Квартира по факту евродвушка, с большой кухней -гостинной и комнатой.Чистая, аккуратная, очень светлая. Рядом поликлиника, школы, детские сады, множество магазинов. Удобная транспортная доступность: 800 метров до съезда на КАД. Остановка общественного транспорта а 5 минутах ходьбы от дома. Автобусы ходят в разные направления города. Пешком до метро Девяткино - 20 минут. Без обременений, прямая продажа. Только прямые деньги, ипотека НЕ  подходит.
Цена
6 150 000 ₽

1-х комнатная квартира

Колпино г., Раумская ул.


32.3 м2
Общая
17.2 м2
Жилая
7.1 м2
Кухня
ОДНОКОМНАТНАЯ КВАРТИРА ПО ХОРОШЕЙ ЦЕНЕ Многоквартирный дом находится в сложившемся районе г. Колпино, регистрация Санкт-Петербург. Социальная и транспортная инфраструктура соответствует высоким требованиям современного города. В непосредственной близости находятся несколько школ и детских садов. До станции метро Шушары можно добраться транспортом за 20 – 25 минут, до жд станции Колпино, транспортом, минут за 15. Квартира продается за собственные денежные средства.
Цена
3 380 000 ₽

Затрудняетесь с выбором?

Не тратьте время на поиск и анализ множества предложений недвижимости
Мы сделаем это за вас профессионально, быстро, предложив оптимальные варианты по выгодной цене!

1-х комнатная квартира

Петергоф г., Шахматова ул. м.Автово


38 м2
Общая
17.8 м2
Жилая
8.4 м2
Кухня
Продается однокомнатная квартира по адресу :СПБ, г.Петергоф, ул. Шахматова, д.16, 7/9 этаж. Очень уютная, теплая, солнечная квартира в хорошем состоянии, встроенная кухня, пол ламинат, стеклопакеты, натяжной потолок, теплый пол на лоджии, встроенный шкаф в прихожей. Очень удобное месторасположение, рядом школы, во дворе детский сад. Достойные соседи. Документы готовы, без обременений. Просмотры заранее по договоренности. Помощь в оформлении ипотеки.Торг
Цена
6 300 000 ₽

1-х комнатная квартира

Мурино г., Графская ул. м.Девяткино


30.36 м2
Общая
9.48 м2
Жилая
12.68 м2
Кухня
Ленинградская область, Всеволожский р-н, метро Девяткино, Мурино г., Графская ул., 6 к.4 Продается просторная 1- комнатная квартира в ЖК Лампо. Дом спроектирован по современным финским технологиям с использованием сборных железобетонных панелей. Лаконичные фасады выполнены в теплых оттенках коричневого и белого цветов. В состав комплекса входит детский сад и подземный паркинг. Придомовая территория благоустроена зелеными зонами, детскими площадками, местами для отдыха и пешеходными тротуарами. Жилой комплекс расположен на северо-западе от Санкт-Петербурга в городе Мурино. В районе есть детские сады, школы, поликлиники, продуктовые магазины, кафе и рестораны. За 15 минут на автомобиле можно добраться до Капральева парка, за 25 минут — до парка «Зубровник» и озер в Токсово. В 30 минутах транспортом расположен горнолыжный курорт «Охта-парк», а в 20 минутах на автомобиле — ТРЦ «МЕГА Парнас». Жилой комплекс находится в 15 минутах пешком от метро и ж/д станции «Девяткино», выезд на КАД — в 10 минутах транспортом. Ждем Вас на просмотр!
Цена
4 800 000 ₽

1-х комнатная квартира

Новое Девяткино дер., Флотская ул. м.Девяткино


40 м2
Общая
21.7 м2
Жилая
9.7 м2
Кухня
Предлагается к продаже просторная-светлая квартира! Теплый кирпично-монолитный дом,2015 года постройки. 4 лифта, 6 этаж. Вход в парадную со двора, возможно с улицы, на первом этаже колясочная. В пешей доступности школа, детские сады, продуктовые магазины, аптеки. Районная поликлиника в шаговой доступности. Свободная парковка во дворе, есть паркинг. ЖД станция, метро `Девяткино` - 15мин.транспортом,30 мин.пешком, удобный выезд на КАД. Объект реализуется через процедуру торгов.                                 Это значит:                                 - Конечная стоимость покупки объекта  на торгах как правило ниже рыночной стоимости  на 20-30%.                                 - Процедура торгов регламентируется федеральным законом, что делает сделку безопасной.                                 Мы всегда работаем только с одним клиентом по одному объекту - чтобы клиент получил возможность приобретения по самой выгодной цене.                                 Наша компания сопровождает сделку до получения клиентом права собственности.                                 Не упустите свою выгодную покупку!
Цена
3 900 000 ₽

1-х комнатная квартира

Красное Село г., Гвардейская ул. м.Проспект Ветеранов


31 м2
Общая
16.7 м2
Жилая
5.7 м2
Кухня
В продаже 1 квартира в центре Красного села, ул Гвардейская 19 к 1. Расположена на 5 этаже, квартира продается при условии покупки альтернативного жилья.  Благодаря развитой инфраструктуре и удобной сети общественного транспорта, проживание в данном районе будет комфортным. Рядом находятся магазины, такие как Перекресток, Пятерочка,рынок, Магнит, Семишагов,  где вы сможете приобрести все необходимое для повседневной жизни, в пешей доступности  расположены детские сады и несколько образовательных учреждений,  церковь, поликлиники, автобусная остановка.
Цена
4 100 000 ₽

1-х комнатная квартира

Всеволожск г., Шевченко ул. м.Улица Дыбенко


34.2 м2
Общая
18.8 м2
Жилая
7.2 м2
Кухня
Ленинградская область, Всеволожский район, г. Всеволожск, ул. Шевченко,д18, корп.1.В продаже  уютная 1-к.квартира с ремонтом на 3-м эт. 3-х этажного панельного дома. В доме  есть чердачное помещение, поэтому  3-й очень хорош для тех, кто ценит тишину над головой.  Дом 2012 года постройки. Кв-ра не угловая, односторонняя, окна выходят на восток. Общая площадь 34,2 кв.м, комната -18,8кв.м., кухня- 7,2кв.м.. Сан. узел совмещенный-2,8 кв.м., установлена душевая кабина, прихожая 5,4 кв.м., пол- ламинат,  окна- стеклопакеты, установлены счетчики на хол.  воду, электроэнерг., газ, отопление-газ.котел (новый) Достоинство квартиры-небольшая квартплата за счет установки газового котла и  круглогодично пользование горячей водой , обогрев квартиры в ненастную погоду весной и осенью по своему усмотрению.  Металлическая входная дверь. В пешей доступности  школа, детский сад, для выпускников 9 или 11 классов-Всеволожский агропромышленный техникум с обучением по специальностям- электрификация и автоматизация с/х; экономика, бух. учет; тех. обслуживание и ремонт двигателей, систем и агрегатов авто, землеустройство; мастер по ремонту и обслуживании авто.; эксплуатация и ремонт с/х техники и оборудования; правоохр. деятельность; тракторист-машинист с/х произв-ва, в10-ти мин. пешком- Всеволожская ЦРБ и поликлиника. Дом расположен в дали от суеты густонаселенного Всеволожска, в  очень тихом и спокойном месте, но в то же время, до остановки общественного транспорта 5 мин. пешком  и за  40 мин. муниципальный автобус № 462 довезет вас до СПб (м. Ладожская) , а с ж/д станции Всеволожская , до которой идет несколько автобусов  10 мин., электричка до Финляндского вокзала(30 мин.). За  20 мин. пешком  от дома  вы попадете в лес, к озерам, где местные жители собирают грибы и ягоды. В 10 мин. от дома находится  природный парк `Песчанка` с велодорожками, детской площадкой, местами отдыха, полюбившийся как молодежи, так и людям пожилого возраста.  Прямая продажа. Рассмотрим  любые формы оплаты
Цена
4 500 000 ₽

1-х комнатная квартира

Сестрорецк г., Приморское шос. м.Беговая


42.9 м2
Общая
18.9 м2
Жилая
10 м2
Кухня
СПб, Сестрорецк, Приморское шоссе, дом 263. Продается однокомнатная квартира с просторной кухней в доме 2007 г.п. - О КВАРТИРЕ - Общая площадь - 42,9 кв.м. Комната - 18,9 кв.м. Кухня - 10 кв.м. Коридор - 10,1 кв.м. Ванная комната - 2,6 кв.м. Сан. узел - 1,3 кв.м. - О ДОМЕ - Дом 2007 г.п. года постройки. Доступ в парадную дома бесступенчатый, удобно как для маломобильных граждан, так и для доступа с колясками, велосипедами и т.д. Ухоженная придомовая территория, чистые парадные. Грузовой лифт. - Инфраструктура - Дом расположен в развитом районе, вокруг магазины, школы, детские сады, мед. центр. Озеро Сестрорецкий разлив - 10 мин. пешком, Финский залив - 15 мин. пешком. - Транспортная доступность - Удобное расположение, до станции 50 метров, до остановки общественного транспорта 100 м. До метро транспортном 20-25 минут. ПРО ДОКУМЕНТЫ: В собственности со момента постройки дома. Один взрослый собственник. Материнский капитал не использовался. Квартира без обременений, подходит под приобретение вами с привлечением ипотеки, субсидии и мат. капитала. В случае необходимости поможем получить одобрение на выгодных условиях! Прямая продажа. Звоните! Просмотры по договоренности
Цена
9 300 000 ₽

1-х комнатная квартира

Карпинского ул. м.Академическая


31.3 м2
Общая
17.2 м2
Жилая
5.8 м2
Кухня
ХОРОШИЙ ВАРИАНТ ПО ДОСТУПНОЙ ЦЕНЕ Многоквартирный дом находится в Калининском районе города Санкт-Петербурга. Социальная и транспортная инфраструктура соответствует высоким требованиям современного города. В непосредственной близости находятся несколько школ и детских садов. До станции метро Академическая, можно дойти неспешным шагом, минут за 20 минут. Данная квартира, под ипотеку не подходит, продается способом проведения аукциона.
Цена
6 550 000 ₽

1-х комнатная квартира

Павловск г., Пионерская ул. м.Купчино


32.9 м2
Общая
11.5 м2
Жилая
11 м2
Кухня
Санкт-Петербург, г.Павловск (микр-он Динамо), ул.Пионерская д.2. Предлагается к продаже тёплая светлая и уютная однокомнатная квартира в тихом и спокойном районе г.Санкт-Петербурга. В квартире выполнен косметический ремонт и  установлены пластиковые окна. Современная евродвушка: комната-11.5 кв.м, просторная кухня-11 кв.м с выходом на лоджию, прихожая правильной квадратной формы  и большой совмещённый санузел. Прекрасное место для постоянного проживания, отдыха и проведения досуга. Рядом несколько магазинов, в том числе Магнит. Хорошее транспортное сообщение, ходят автобусы и маршрутки, г.Павловск-10 мин, г.Пушкин-15 мин, ст.м Московская-30 мин. Рядом очень красивые места-усадьба графини Самойловой, церковь святой Екатерины. Два совершеннолетних собственника, зарегистрированные лица отсутствуют. Прямая продажа. В квартире никто не проживает. Звоните, отвечу на все интересующие Вас вопросы, просмотры по предварительной договорённости.
Цена
4 500 000 ₽

Студия

Сертолово г., Центральная ул. м.Проспект Просвещения


21.9 м2
Общая
16 м2
Жилая
 —
Кухня
Квартира-студия в ЖК `Чистый ручей`, Корпус 3, Секция Е. Дом введен в эксплуатацию в апреле 2023 года! Квартира правильной формы. Потолки 2,75 метра. Сан.узел совмещенный. Подъезд оборудован подъемником для людей с ограниченными возможностями. Вся необходимая инфраструктура в шаговой доступности (детские сады, школы, ФОК, школа искувств, детская и взрослая поликлиники). На территории ЖК магазины, кафе, аптеки, пункты выдачи маркетплейсов. Транспортная доступность от метро `Парнас`, пр. Проспект Просвещения` или `Озерки` 20-25 минут. На автомобиле до КАД 5 км. ЖК расположен в крупном лесном массиве. Один взрослый собственник. Никто не прописан. Просмотры по предварительной договоренности.
Цена
3 189 000 ₽

Закажите консультацию специалиста

Оставьте заявку
Нажимая на кнопку «Отправить заявку», Вы даете согласие на обработку своих персональных данных.
×
продажа
Что вы хотите продать?
Сколько комнат?
Тип объекта?
В каком регионе?
В каком районе Санкт-Петербурга
В каком районе Ленинградской области?

Оставьте Ваш контакт и наши специалисты свяжутся с Вами в самые кротчайшие сроки.

+7
×
новостройка
Какие районы Санкт-Петербурга Вас интересуют?
С какой целью Вы планируете приобрести квартиру?
Сколько комнат должно быть в Вашей будущей квартире?
Какой вариант отделки Вам необходим?
Когда Вы хотите заехать?
В какой бюджет хотите уложиться?

Оставьте Ваш контакт и получите подборку квартир без риска столкнуться с мошенничеством и недостроем.

+7
×
сдать
Что вы хотите сдать?
Скольки комнатная квартира?
Какой тип коммерческой недвижимости вы хотите сдать?
В каком регионе?
В каком районе Санкт-Петербурга
В каком районе Ленинградской области?

Оставьте Ваш контакт и наши специалисты свяжутся с Вами в самые кротчайшие сроки.

+7
Этот сайт использует файлы cookie для улучшения пользовательского опыта. Cookie - это небольшие текстовые файлы, которые сохраняются на вашем устройстве и помогают нам запоминать ваши предпочтения, анализировать посещаемость сайта и предоставлять более персонализированный контент. Использование файлов cookie позволяет нам сделать сайт удобнее для вас. Политика конфиденциальности
Принять Отказаться