Продажа квартир и комнат

Комнаты
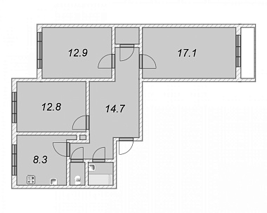
Например: Массальского, 4
Ванные
3-х комнатная квартира

Победа пос., Мира ул. м.Беговая


72.5 м2
Общая
42.8 м2
Жилая
8.3 м2
Кухня
192 Предлагается к продаже большая 3 комнатная квартира Лен.обл. Выборгский р-он п.Победа ул.Мира д.4 на пятом этаже пятиэтажного панельного дома г.п.1991.Общ. 72,5 кв.м. планировка двухсторонняя- изолированная 12,8+12,9+17,1+застекленная лоджия. Кухня 8,3 кв.м, большая прихожая 14,7 кв.м, с/у раздельный ,есть большая кладовка 2,1кв.м и две 0,3+0,4 кв.м. Частично оставляем мебель. Квартира расположена в середине дома ,очень теплая. Требует косметического ремонта. В поселке хорошо развита инфраструктура. Есть школа, детский сад, медицинский кабинет, сетевые магазины` Пятерочка`, ` Магнит`, мини- Лента. До ж/д Каннельярви, 5 минут на автобусе. До СПб ходят электрички повышенной комфортности `Ласточка` - 35 мин. Вокруг лес, озеро. Летом грибы, ягоды. Три взрослых собственника. Подходит под ипотеку. Встречная покупка 2 к.кв. в п.Победа ул.Мира первый или второй этаж. Просмотры по предварительной договоренности.
Цена
5 200 000 ₽

3-х комнатная квартира

Костюшко ул. м.Московская


41.7 м2
Общая
29.9 м2
Жилая
5.3 м2
Кухня
Продается уютная трехкомнатная квартира на первом этаже без балкона в Московском районе Санкт-Петербурга. Квартира находится в шаговой доступности от метро, магазинов, школ и детских садов, а также поликлиники. Квартира требует косметического ремонта, но уже частично отремонтирована. Она находится в отличном состоянии и готова к заселению новых жильцов. Удобное расположение дома позволяет легко добраться до всех необходимых объектов инфраструктуры. Рядом с домом находятся магазины, школы, детские сады, поликлиники, остановки общественного транспорта и станции метро. Если вы ищете уютное и комфортное жилье в хорошем районе, то эта квартира может стать идеальным выбором для вас. Звоните нам и мы поможем вам купить эту квартиру.
Цена
6 800 000 ₽

Комната в 3-комн. квартире

Маршала Жукова пр. м.Проспект Ветеранов


64 м2
Общая
28 м2
Жилая
7 м2
Кухня
г. Санкт-Петербург пр. Маршала Жукова д. 32 к 1 Предлагаем уникальную возможность стать владельцем двух уютных комнат в одной квартире! Идеальный вариант для тех, кто ищет доступное жилье с перспективой расширения. Простор и комфорт: Комната 1: 17.9 кв. м – достаточно места для воплощения ваших дизайнерских идей и создания комфортной зоны отдыха. Комната 2: 10.2 кв. м – отлично подойдет для спальни, детской или рабочего кабинета. Раздельное проживание: Комнаты изолированы друг от друга, что обеспечивает приватность и комфорт для каждого члена семьи. Перспективы роста: В квартире проживают еще одни соседи. В будущем есть возможность выкупа третьей комнаты и превращения вашей недвижимости в полноценную квартиру. Это отличная инвестиция в будущее! Удобное расположение: Квартира расположена в районе с развитой инфраструктурой. В шаговой доступности магазины, школы, детские сады, остановки общественного транспорта. Преимущества: Доступная цена Раздельные комнаты Возможность расширения жилплощади Развитая инфраструктура района Не упустите свой шанс! Звоните прямо сейчас и станьте владельцем двух комнат по цене одной! Прекрасное вложение в будущее для молодой семьи или студентов!
Цена
6 800 000 ₽

Затрудняетесь с выбором?

Не тратьте время на поиск и анализ множества предложений недвижимости
Мы сделаем это за вас профессионально, быстро, предложив оптимальные варианты по выгодной цене!

3-х комнатная квартира

Гатчина г., Пушкинское шос. м.Проспект Ветеранов


104.1 м2
Общая
46.4 м2
Жилая
15.5 м2
Кухня
Ваша новая уютная ,солнечная, теплая трёхкомнатная квартира, на четвертом этаже одиннадцатиэтажного кирпично-монолитного дома, в Гатчине на Пушкинском шоссе д.1 О квартире: Площадь квартиры составляет:104,1м2 Комната:16,5м2+16,2м2+13,7м2 Кухня:15,5м2 Ванная:4,2м2 Туалет: 3,5м2 Прихожая:34,5м2 Квартира продается с черновой отделкой, так же можем выполнить ремонт квартиры по Вашему дизайн-проекту! В подземном паркинге еще есть свободные места!!! О инфраструктуре: Дом находится в 15 минутах от Орловой рощи. Рядом Дворцовым парком. В пешей доступности от дома детские сады № 11 и 52, школы № 9 и 1, педагогический колледж, поликлиника и медцентр.   Гипермаркеты `Окей` и `Элемент`. В шаговой доступности торговые центры `Кубус` , `Рощинский`, `Гатчинский` и `Мегаполис`. Спортивный комплекс `Атлетик` Транспортную доступность обеспечивают Ленинградское, Красносельское и Пушкинское шоссе. Дорога до КАД занимает 25 минут. До станции метро `Московская` маршрутное такси доставит за час. Можно воспользоваться электричкой. В 2 км от дома находится ж/д платформа Татьянино, откуда до Балтийского вокзала скоростным поездом ехать 30 минут!!! Всего 30 минут и Вы в центре Санкт-Петербурга!!! Прямая продажа. Рассматриваем все виды оплат. Квартира подходит под льготную ипотеку!
Цена
14 484 000 ₽

3-х комнатная квартира

Маршала Жукова пр. м.Проспект Ветеранов


64 м2
Общая
45 м2
Жилая
7 м2
Кухня
г. Санкт-Петербург пр. Маршала Жукова д. 32 к.1 Подходит под ипотеку без первого взноса! Предлагается к продаже 3к.кв. в панельном доме. Комнаты раздельные. Отличные соседи. Д/сад, школа в шаговой доступности, сетевые магазины. Отличная транспортная доступность. Два хозяина. Есть долг по ипотеке 1500000р.
Цена
13 500 000 ₽

3-х комнатная квартира

Краснопутиловская ул. м.Кировский завод


82 м2
Общая
47.3 м2
Жилая
17 м2
Кухня
Кировский район Санкт-Петербурга. Сталинская классика.отличная трехкомнатная квартира с кухней-гостинной. Квартира двустороняя- две комнаты с видом на Комсомольскую площадь, кухня-гостинная и комната , окна выходят в тихий зеленый двор. В квартире произведен качественный ремонт в 2019 году. В окружении все необходимая инфраструктура для  комфортного проживания , метро `Кировский завод` в шаговой доступности (5 минут пешком).Свободное парковочное место в любое время суток. Обременения, ограничения отсутствуют, в собственности более 5-ти лет. Прямая продажа.
Цена
18 200 000 ₽

3-х комнатная квартира

Кировск г., Набережная ул. м.Улица Дыбенко


67.4 м2
Общая
40.1 м2
Жилая
10 м2
Кухня
ЛО г. Кировск ул. Набережная д.17(м. Дыбенко 35 мин.) Вашему вниманию представляется полноценная трехкомнатная квартира расположенная в новом доме (2014 г.п.) в самом центре Кировска.Общая площадь квартиры 67.4 кв.м., все комнаты изолированные 10.0+ 11.5+18.6 кв.м., кухня 10.0 кв.м., коридор 12.3 кв.м.+ балкон 12 кв.м. В квартире выполнен современный и качественный ремонт. В кухне, коридоре, ванной и санузле-полы керамогранит с частичным подогревом. В подарок новым владельцам остается кухонный гарнитур выполненный на заказ по индивидуальному проекту с подсветкой как внешней, так и внутренней, также остается вся встраиваемая техника- электрическая духовка, посудомоечная машинка, индукционная плита. В санузле установлен фарфоровый унитаз, бойлер на 50 литров и гигиенический душ. В ванной комнате заменена ванная от застройщика на качественную акриловую польского производства, тропический и классический душ с регулируемой насадкой и краном и фарфоровая раковина.   В коридоре также остается 2 вместительных шкафа, обувница и навесные полки которые тоже выполнены по индивидуальному заказу учитывая планировку коридора. На балконе произведен ремонт с утеплением пола, стен и потолка, установлен свет, заменены окна застройщика на теплоокна. Все окна открываются. Входная дверь квартиры сделана из усиленных материалов и оснащена 3-мя замками. Особенность подъезда - все квартиры многокомнатные и на площадке расположены всего 4 квартиры, вежливые и интеллигентные соседи, ухоженная парадная, лифт, большая парковочная зона вокруг дома с камерами видеонаблюдения. В шаговой доступности продуктовые магазины, Градусы, салоны красоты, рынок, детские сады, школы, несколько детских площадок во дворе, на площади, центральный вход в парк и автостанция, кафе. В пределах 10 мин пешком – детская и взрослая поликлиники, бассейн, сбербанк, Дом культуры, центральный городской пляж, спортивная площадка и многое другое. Быстрый выход на сделку! Подходит под ипотеку!
Цена
9 900 000 ₽

3-х комнатная квартира

Рощино пос., Советская ул. м.Удельная


72 м2
Общая
46 м2
Жилая
8.5 м2
Кухня
Просторная квартира с прекрасной планировкой в центре г.п.Рощино.Сделан свежий евро ремонт, заменены все трубы, электрика,везде стеклопакеты,в подарок остается встроенная мебель на кухне. Большая прихожая, кухня и жилые комнаты, застекленная лоджия, кладовая и стенной шкаф.Поселок с развитой инфраструктурой, рядом школа, детский сад, игровые площадки, школьный стадион,  магазины и т.д. В шаговой доступности озеро(разлив реки Рощинки) с песчаными  пляжами и парковая зона поселка.С Санкт-Петербургом сообщение отличное. Недалеко расположен горнолыжный курорт `Пухтолова гора`, сосновый лес и много озер. Приветствуется любая форма оплаты,  Продажа  с побором  встречного  варианта.
Цена
9 450 000 ₽

3-х комнатная квартира

Пушкин г., Колпинское шос.


54.4 м2
Общая
32.9 м2
Жилая
 —
Кухня
г.Санкт-Петербург, г.Пушкин Колпинское шоссе д.109. Продается двухуровневая 3-х комн.квартира общая площадь 45,4 м.кв. Две светлые уютные комнаты, третья летняя комната находится на мансардном этаже.  Прекрасное предложение для загородной жизни в городских условиях! Отдельный вход на участок, утопающем в зелени.Ухоженная территория с молодым садом и цветами. Четыре автобусные остановки до г.Пушкин с его историческими ансамблями парков и дворцов. 5 минут до ж.д станции Царское Село с прямым сообщением с г.Санкт-Петербург (Витебский вокзал) метро Пушкинская. Общественный транспорт за 20 минут доставит Вас до метро Купчино. Рядом находится новый развивающийся микрорайон Славянка, новые школы и д/сады. В пешей доступности магазины Пятерочка, Магнит, Перекресток, Лента (работает 24 часа), ТЦ `Грин Парк` со спортивным комплексом и бассейном. Городская регистрация. Один собственник.    Встречная покупка - квартира в г.Пушкин. Просмотры по договоренности в удобное для Вас время. Звоните! Отвечу на Ваши вопросы и предложения!
Цена
7 950 000 ₽

Комната в 3-комн. квартире

Ломоносов г., Александровская ул. м.Автово


56.2 м2
Общая
30.8 м2
Жилая
5 м2
Кухня
Санкт-Петербург, г. Ломоносов, ул. Александровская, д. 31. Прямая продажа. Продаются 2 смежные комнаты комнаты в 3 к. квартире . Большая комната с балконом. В третьей комнате проживает порядочная одинокая женщина, которая на лето уезжает. Квартира теплая и светлая, установлены стеклопакеты. Дом расположен во дворе, окна на тихий зеленый двор. Рядом сеть магазинов, школа, д/сад и поликлиника, почта. Отличное транспортное сообщение, в шаговой доступности транспорт в любое направление. До Санкт-Петербурга можно доехать на электричке, а так же ходит муниципальный транспорт до станций метро Ленинский пр., Автово, пр. Ветеранов, Купчино или на машине 25 мин. по КАДу  в объезд всех пробок. Просмотр в удобное для вас время. Поможем с оформлением ипотеки. 1 взрослый собственник. Документы к продаже готовы. Торг уместен.
Цена
3 800 000 ₽

3-х комнатная квартира

Русановская ул. м.Ломоносовская


92 м2
Общая
47 м2
Жилая
16.6 м2
Кухня
Санкт-Петербург, Невский район, ул. Русановская, д.11, ЖК «Ласточкино гнездо» М «Ломоносовская» 4,8 км Ваша большая дружная семья нуждается в дополнительном пространстве? Обратите внимание на эту Огромную, теплую, уютную, светлую трехкомнатную квартиру 88,42 кв м (с лоджиями 92,04 кв м) С ДВУМЯ ПАРКОВОЧНЫМИ МЕСТАМИ  в крытом паркинге! Прекрасная планировка: 3 изолированные комнаты (18,1+14+14,9), просторная кухня, небольшая гардеробная, Раздельный санузел, 2 большие застекленные и утепленных лоджии, на одной из которых есть проводка для инфракрасного обогревателя.   Квартира двусторонняя, что позволит легко проветривать квартиру в жаркую погоду. В квартире сделан хороший ремонт, а это значит – въезжайте и живите без проблем с ремонтом. На просторной кухне остается эксклюзивный кухонный гарнитур из массива дуба + встраиваемая техника отличного качества:  холодильник, морозильная камера, думаю, что эта уютная кухня будет любимым местом для  всей семьи. Вопрос с остальной мебелью можем обсудить на просмотре. Парадная дома находиться во дворе, двор закрыт, открывается домофонным ключом. В парадной - консьерж. В доме 3 лифта. Парадная светлая, чистая, теплая. Около дома находиться 3 детских сада, современная  школа со взрослым и детским бассейном, футбольным и баскетбольным полями, вторая школа находить через речку Утка, третья школа строиться у дома. Для ваших детей -  детские площадки. В пешей доступности сетевые магазины, аптеки, пункты выдачи и все самое необходимое. Как видите скучать не придется как вам, так и вашим детям. Выезд из паркинга очень удобный, сразу на ул. Русановская, перед выездом на Октябрьскую набережную, Самое главное, вам не надо искать места для парковки и вы не будете стоять  в пробке при выезде и въезде на набережную из ЖК , ведь дом стоит на первой линии. Прекрасный вариант для большой и дружной семьи.  Нужна ипотека? Подберем индивидуальную программу. Звоните и записывайтесь на просмотр! Ждём вас!
Цена
17 500 000 ₽

3-х комнатная квартира

Федоровское пос., Счастливая м.Купчино


77.7 м2
Общая
46 м2
Жилая
13.3 м2
Кухня
Продаётся просторная 3- комнатная  квартира на 2 этаже  с удобной планировкой в новом жилом комплексе малоэтажного строительства. ЖК  находится в 20 минутах езды на автобусе от жд/станции`Павловск`,в 35 минутах езды от ст.метро`Купчино` г.СПБ. До Павловска каждые 10 минут ходят тактовые электрички от ст.метро `Витебский вокзал` г.СПБ ,в пути - 15 минут.От Павловска ходят автобусы каждые 10 минут,в пути - 20 минут. Дома все 4 -этажные ,построены застройщиком г.СПБ ,который зарекомендовал себя качественно сданными объектами.(900 таунхаусов).Материал - кирпично-монолитный.Высота потолков 2,75 см.Сан.узел - раздельный.Просторная кухня.Кладовки для хранения.Застеклённый балкон, лифт.Д/площадка - во дворе,двор - закрытый ,наземный паркинг всегда свободный.Рядом магазин,пункт выдачи`ОЗОН`,конный клуб,д/сад ,школа, поликлинника. Есть доставка. Прописка - лен.область.КУ составляют около 2500 - 3000 в месяц.В домах очень тепло,спокойно,и просторно.Соседи очень дружные. Рядом - шикарный  Павловский парк ,г.Павловск,г.Пушкин. Дом новый,в квартире отделка без ремонта, предчистовая. Выведены все коммуникации.Можно заезжать и жить.С документами всё в порядке.В квартире никто не прописан. ДДУ. Подходит под любой вид ипотеки,субсидии.В том числе сельскую со ставкой 2,7 %.Ремонт под ключ можно добавить к стоимости квартиры ,и включить в ипотеку. Ипотеку подбираю в соответствии с вашим запросом ,это входит в стоимость квартиры. Квартира  мечты.
Цена
9 555 000 ₽

Закажите консультацию специалиста

Оставьте заявку
Нажимая на кнопку «Отправить заявку», Вы даете согласие на обработку своих персональных данных.
×
продажа
Что вы хотите продать?
Сколько комнат?
Тип объекта?
В каком регионе?
В каком районе Санкт-Петербурга
В каком районе Ленинградской области?

Оставьте Ваш контакт и наши специалисты свяжутся с Вами в самые кротчайшие сроки.

+7
×
новостройка
Какие районы Санкт-Петербурга Вас интересуют?
С какой целью Вы планируете приобрести квартиру?
Сколько комнат должно быть в Вашей будущей квартире?
Какой вариант отделки Вам необходим?
Когда Вы хотите заехать?
В какой бюджет хотите уложиться?

Оставьте Ваш контакт и получите подборку квартир без риска столкнуться с мошенничеством и недостроем.

+7
×
сдать
Что вы хотите сдать?
Скольки комнатная квартира?
Какой тип коммерческой недвижимости вы хотите сдать?
В каком регионе?
В каком районе Санкт-Петербурга
В каком районе Ленинградской области?

Оставьте Ваш контакт и наши специалисты свяжутся с Вами в самые кротчайшие сроки.

+7
Этот сайт использует файлы cookie для улучшения пользовательского опыта. Cookie - это небольшие текстовые файлы, которые сохраняются на вашем устройстве и помогают нам запоминать ваши предпочтения, анализировать посещаемость сайта и предоставлять более персонализированный контент. Использование файлов cookie позволяет нам сделать сайт удобнее для вас. Политика конфиденциальности
Принять Отказаться