Продажа квартир и комнат

Комнаты
Например: Массальского, 4
Ванные
2-х комнатная квартира

Шкапина ул. м.Балтийская


53.53 м2
Общая
24.52 м2
Жилая
13.08 м2
Кухня
СПб, Адмиралтейский р-н, Шкапина ул., д.15 Продам просторную 2- комнатную  квартиру с лоджией  в ЖК GloraX Балтийская. Проект возведен по долговечной кирпично-монолитной технологии. В оформлении фасадов домов используются современный вентилируемый фасад и штукатурка, внешние стены облицованы клинкерным кирпичом, а фактурная плитка в контрастном колористическом решении придает зданиям объем. В проекте предусмотрено лобби с авторским дизайном, комфортной лаунж-зоной и панорамными видами на сад во двор. Единый стилобат жилого комплекса объединяет в себе коммерческую инфраструктуру и отделяет внутренний двор от внешнего мира, создавая приватную территорию. В проекте предусмотрены инновационные решения и сервисы, торговая галерея в стилобате с кафе и ресторанами. Приватное пространство внутреннего двора благоустроено сенсорными садами, собственным променадом и рощей, камерными зонами для пикника и отдыха, детскими эко-площадками и спортивными work-out зонами. Рядом с жилым комплексом спроектирован детский сад. В проекте предусмотрен отапливаемый паркинг с прямым доступом на лифте. Предусмотрены места с автоподъемником и с возможностью установки зарядки для электромобилей. За безопасность отвечают автоматизированная система заезда с резидентским пропуском, комплексное видеонаблюдение и охранный пункт 24/7. Жилой комплекс находится в Адмиралтейском районе, в 10 минутах пешком от метро «Балтийская». До набережной Обводного канала можно дойти за 5 минут. До аэропорта всего 25 минут транспортом. Инфраструктура района развита, в пешей доступности находятся детские сады, магазины, кафе, спортивные клубы, медицинские учреждения, салоны красоты. Ближайшую инфраструктуру можно посмотреть на аэропанораме. Ждем Вас на просмотр!
Цена
22 700 000 ₽

2-х комнатная квартира

Графская ул. м.Девяткино


41.85 м2
Общая
19.69 м2
Жилая
11.49 м2
Кухня
Подходят все виды ипотек, включая 6% семейная, и iT. Квартира расположена в жилом корпусе высотой в 19 этажей. Дом спроектирован по современным финским технологиям с использованием сборных железобетонных панелей. Лаконичный фасад выполнен в теплых оттенках коричневого и белого цветов. В шаговой доступности детский сад и в доме подземный паркинг. Придомовая территория благоустроена зелеными зонами, детскими площадками, местами для отдыха и пешеходными тротуарами. На первых этажах 1, 2 и 4 корпусов предусмотрены коммерческие помещения. За 15 минут на автомобиле можно добраться до Капральева парка, за 25 минут — до парка «Зубровник» и озер в Токсово. В 30 минутах транспортом расположен горнолыжный курорт «Охта-парк», а в 20 минутах на автомобиле — ТРЦ «МЕГА Парнас».  Метро в 15 минутах пешком, и также ж/д станция «Девяткино», выезд на КАД — в 10 минутах транспортом.
Цена
7 329 000 ₽

2-х комнатная квартира

Мурино г., Графская ул. м.Девяткино


50.99 м2
Общая
28.38 м2
Жилая
9.23 м2
Кухня
Квартира в лучшей локации, подходят все виды ипотек, включая 6% семейная, и iT.   В шаговой доступности детские сады, школы, поликлиники, продуктовые магазины, кафе и рестораны. За 15 минут на автомобиле можно добраться до Капральева парка, за 25 минут — до парка «Зубровник» и озер в Токсово. В 30 минутах транспортом расположен горнолыжный курорт «Охта-парк», а в 20 минутах на автомобиле — ТРЦ «МЕГА Парнас». Метро в 15 минутах пешком, до ж/д станции «Девяткино» не более 17 мин. Выезд на КАД — в 10 минутах транспортом.
Цена
8 781 000 ₽

Затрудняетесь с выбором?

Не тратьте время на поиск и анализ множества предложений недвижимости
Мы сделаем это за вас профессионально, быстро, предложив оптимальные варианты по выгодной цене!

2-х комнатная квартира

Мурино г., Екатерининская ул. м.Девяткино


42.3 м2
Общая
19.69 м2
Жилая
11.49 м2
Кухня
Подходят все виды ипотек, включая 6% семейная, и iT.Квартира расположена в  доме высотой в 16 этажей. Дом спроектирован по современным финским технологиям с использованием сборных железобетонных панелей. Лаконичный фасад выполнен в теплых оттенках коричневого и белого цветов. Подземный паркинг. Придомовая территория благоустроена зелеными зонами, детскими площадками, местами для отдыха и пешеходными тротуарами. В шаговой доступности детские сады, школы, поликлиники, продуктовые магазины, кафе и рестораны. За 15 минут на автомобиле можно добраться до Капральева парка, за 25 минут — до парка «Зубровник» и озер в Токсово. В 30 минутах транспортом расположен горнолыжный курорт «Охта-парк», а в 20 минутах на автомобиле — ТРЦ «МЕГА Парнас». Метро в 15 минутах пешком. Выезд на КАД — в 10 минутах транспортом.
Цена
7 431 000 ₽

2-х комнатная квартира

Отрадное г., Вокзальная ул. м.Рыбацкое


45.2 м2
Общая
28.1 м2
Жилая
6 м2
Кухня
Ленинградская обл., Кировский р-н, г. Отрадное, ул. Вокзальная, д.3 В продаже двухкомнатная квартира, расположенная на 5 этаже пятиэтажного кирпичного дома, которая прекрасно подойдет для небольшой семьи или семейной пары. Общая площадь квартиры 45,2 кв.м., жилая площадь 28,1 кв.м., кухня 6 кв.м. В квартире имеются две совмещенные комнаты площадью 17,2 кв.м. и 10,9 кв.м., санузел раздельный. Настоящим украшением гостиной комнаты является эркерное окно, которое создаёт панорамный вид на улицу и позволяет большему количеству естественного света проникать в квартиру и обеспечивать дополнительное пространство внутри комнаты.   Кухня имеет небольшую площадь, но расположенный под окном небольшой шкаф обеспечивает дополнительное место для хранения продуктов или кухонной утвари. На кухне также установлена газовая колонка, решающая наиболее дешёвым способом проблему горячей воды и позволяющая не зависеть от графика ее летнего отключения. Окна выходят во двор, в котором всегда можно найти парковочное место для автомобиля. Квартира находится в доме, расположенном в тихом и зеленом дворе, всего в 3 минутах ходьбы от железнодорожной станции Ивановская (20 минут до метро Рыбацкое) и в 5 минутах ходьбы от автобусной остановки (30 минут маршрутка или автобус до метро Рыбацкое). Квартира расположена в удобном и благоустроенном районе, с развитой инфраструктурой и хорошей транспортной доступностью. Рядом с домом находятся магазины, детские площадки, детские сады, лицей, парки и спортивные площадки, скейт-ринг. Подходит под ипотеку и материнский капитал. Мы окажем полное сопровождение сделки за счет нашей компании. Не упустите свой шанс приобрести эту отличную квартиру и создать особый уголок для своей семьи или себя самого! Звоните нам прямо сейчас и мы организуем для вас просмотр этого интересного предложения!
Цена
4 900 000 ₽

2-х комнатная квартира

Мурино г., Екатерининская ул. м.Девяткино


47.91 м2
Общая
21.85 м2
Жилая
14.3 м2
Кухня
Ленинградская область, Всеволожский р-н, метро Девяткино, Мурино г., Екатерининская ул., 19 Продается просторная 2- комнатная квартира в ЖК Урбанист. Вентилируемые фасады отделаны керамогранитом в серых тонах. На территории ЖК спроектировано 2 детских сада и физкультурно-оздоровительный комплекс, а также, многоуровневый паркинг. На первых этажах находятся коммерческие помещения. На придомовой территории расположены детские площадки, места для дрессировки собак, пешеходные аллеи и велодорожки. Озеленение территории производится по специально разработанному ландшафтному дизайну. На территории комплекса предусмотрена система видеонаблюдения, двор закрыт от машин. ЖК расположен во Всеволожском районе. Внешняя инфраструктура развита: работают  2 школы, 12 детских садов, а также Токсовская районная больница, травмпункт и детская поликлиника. В пешей доступности продуктовые магазины и аптеки. В 5 минутах транспортом выезд на КАД, метро «Девяткино» в 10 минутах транспортом. Ждем Вас на просмотр!
Цена
8 000 000 ₽

2-х комнатная квартира

Мурино г., Екатерининская ул. м.Девяткино


56.68 м2
Общая
26.35 м2
Жилая
18.74 м2
Кухня
Лучшее предложение, квартира в ЖК «Графика» который претендует на то, чтобы стать новой архитектурной доминантой района. Закрытая территория, яблоневый сад во дворе, пышное озеленение, подземный паркинг, кладовые, панорамные окна, дизайнерские холлы.  Площадка для спорта и релакса прямо на крышах коммерческих помещений. И это не все бонусы, которые ждут покупателя этой чудесной квартиры.  Ограждение по периметру и установленные камеры в совокупности с современными цифровыми системами контроля доступа на территорию комплекса обеспечат безопасность для вас и ваших близких. Вы всегда найдете место для своего автомобиля, ведь в комплексе предусмотрен подземный охраняемый паркинг, спуститься в который можно прямо на лифте. Все виды ипотек, включая семейная и IT 6%
Цена
10 315 000 ₽

2-х комнатная квартира

Мурино г., Ручьевский просп. м.Девяткино


47.62 м2
Общая
22.92 м2
Жилая
11.62 м2
Кухня
Ленинградская область, Всеволожский р-н, метро Девяткино, Мурино г., Ручьевский просп., 20 Продается просторная 2- комнатная квартира в ЖК Полис Лаврики. Жилой комплекс спроектирован в модном стиле скандинавского минимализма и отличается сдержанными цветовыми решениями. Высота потолков  2,7 метра. Жилой квартал объединяет 6 домов, детский сад и школу. Корпуса образуют дворы закрытой формы с оборудованным пространством для спорта и отдыха. Во дворах расположены игровые площадки для детей разных возрастов, площадки для воркаута и для командных игр, также предусмотрено место для игры в настольный теннис. На первом этаже разместились коммерческие помещения. Для владельцев автомобилей предусмотрен многоуровневый паркинг. Жилой квартал находится в западной части Мурино, современном благоустроенном пригороде Петербурга, в живописном месте, неподалеку от реки Охта. Ближайшая станция метро — Девяткино, железнодорожная станция — Лаврики. Удачная локация позволяет быстро добраться до исторического центра города, и в наиболее популярные места загородного отдыха — Охта-парк, Северный склон, Зубровник, озеро Хепоярви и Кавголовское озеро. Ждем Вас на просмотр!
Цена
8 880 000 ₽

2-х комнатная квартира

Мурино г., Екатерининская ул. м.Девяткино


50.23 м2
Общая
23.6 м2
Жилая
12.8 м2
Кухня
Ленинградская область, Всеволожский р-н, метро Девяткино, Мурино г., Екатерининская ул., 16 к.5 Продам большую 2- комнатную квартиру с лоджией в ЖК Графика. Фасад выполнен в черно-белой гамме, вход в подъезд спроектирован на уровне земли. В корпусе выполнена дизайнерская отделка входных групп, предусмотрены кладовые и колясочные помещения. Высота потолков 2.73 метра. В ЖК на крыше коммерческих помещений спроектирована зона отдыха с площадкой для йоги, установлены скамейки, шезлонги и беседки. По всей территории комплекса ведется видеонаблюдение. Дворы обустроены по концепции «двор без машин». На придомовой территории проведено озеленение, посажен яблоневый сад, спроектированы современные игровые и спортивные площадки. Для автовладельцев оборудован подземный паркинг. ЖК находится г. Мурино, во Всеволожском районе. Внешняя инфраструктура развита: школы, детские сады, бассейн, футбольная школа, магазины, супермаркет «Лента», Сбербанк. До ТРК «Мега Парнас» и IKEA, 10 минут транспортом. В 15 минутах пешком находится метро «Девяткино». Ждем Вас на просмотр!
Цена
12 100 000 ₽

2-х комнатная квартира

Отрадное г., Советская ул. м.Рыбацкое


48.5 м2
Общая
29.19 м2
Жилая
6.8 м2
Кухня
Ленинградская область, Кировский район, г. Отрадное Квартира с удачной планировкой и прекрасным расположением Мы рады представить вам двухкомнатную квартиру, расположенную в самом сердце города Отрадное. Она находится на пятом этаже пятиэтажного дома 1977 года постройки, в непосредственной близости от Пеллинского соснового парка и всего в 10 минутах от набережной реки Нева. Квартира без ремонта. Общая площадь квартиры составляет 48,5 кв. м, она состоит из двух раздельных комнат площадью 16,99+12,2 кв. м, а также отдельного санузла. Большой балкон, соединяет обе комнаты и имеет два выхода. Кухня 6,8 кв.м. имеет правильную квадратную форму и оборудована газовой плитой. Окна квартиры выходят во двор, на юго-запад, что обеспечивает ей обилие естественного света и солнечного тепла в любое время года. Вся необходимая инфраструктура находится в пешей доступности. Остановка общественного транспорта расположена всего в 7 минутах ходьбы, а до метро Рыбацкое можно добраться на маршрутке или автобусе за 30-40 минут или на электричке за 20 минут. У квартиры три взрослых собственника, она свободна от долгов и обременений. Подходит для всех видов расчетов, а мы с радостью окажем помощь в одобрении ипотеки через личный кабинет агента на самых выгодных условиях. Не упустите возможность стать хозяином этой чудесной квартиры! Звоните и записывайтесь на просмотр, мы будем ждать вас с нетерпением!
Цена
3 950 000 ₽

2-х комнатная квартира

Лодейнопольская ул. м.Чкаловская


53.84 м2
Общая
24.6 м2
Жилая
13.1 м2
Кухня
Санкт-Петербург, Петроградский р-н, метро Чкаловская, Лодейнопольская ул., 7 Продается большая 2- комнатная квартира в ЖК Tesoro by Akvilon. Фасад выполнен в стиле «Северного модерна» с эркерами. Первые три этажа облицованы натуральным камнем. В темное время суток предусмотрена художественная подсветка фасадов. В местах общего пользования выполнена дизайнерская чистовая отделка. Жилой комплекс оснащен современным инженерным оборудованием по системе «Умный дом» и системой InHOME. Она позволяет дистанционно регулировать освещение, климат, контролировать работу бытовой техники, инженерных сетей, оплачивать коммунальные услуги и позволяет управлять безопасностью в квартире со смартфона. В состав комплекса входит детский клуб «Аквилон Kids». На закрытой охраняемой придомовой территории спроектирована всепогодная детская площадка. В каждой парадной есть колясочные и сити-боксы для хранения вещей. Почтовые ящики работают по системе ESMART, они открываются с телефона или картой доступа. Жилой комплекс расположен на Петроградской стороне, в районе с развитой инфраструктурой и сетью общественного транспорта. В шаговой доступности находятся детские сады, школы, гимназии, фитнес-клубы, супермаркеты, достопримечательности и сады. До метро «Чкаловская» 5 минут пешком. Ждем Вас на просмотр!
Цена
49 300 000 ₽

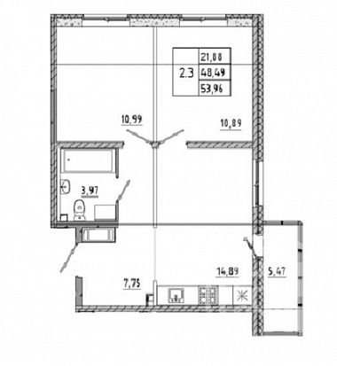
2-х комнатная квартира

Бугры пос., Тихая ул. м.Девяткино


50.13 м2
Общая
21.88 м2
Жилая
14.89 м2
Кухня
Ленинградская область, Всеволожский р-н, метро Девяткино, Бугры пос., Тихая ул., 9 к.3 Продается просторная 2- комнатная квартира с большой кухней- гостинной и с лоджией в ЖК Новые горизонты. Дом выполнен  в лаконичном стиле, фасады украшены витражным остеклением. Индивидуальный стиль и дизайн мест общего пользования,  импортных лифты. Объект включает в себя 3 детских сада и школу на 1375 мест и коммерческие помещения на первых этажах. Придомовая территория благоустроена пешеходными тротуарами, зелеными зонами и местами для отдыха. Расположение корпусов образует закрытые дворы, где установлены детские и спортивные площадки и уличные тренажеры. На территории ЖК работает служба консьержей и охраны. ЖК расположен во Всеволожском районе. В пешей доступности работают продуктовые магазины, отделения почты и банков. В пяти минутах транспортом находится «МЕГА Парнас», а также «OBI»,«IKEA» и «Ашан», в 15 минутах – курорт «Охта-парк». В радиусе пяти километров расположены метро «Парнас», «Проспект Просвещения», «Гражданский проспект» и «Девяткино». Выезд на КАД – в пяти минутах транспортом. Ждем Вас на просмотр!
Цена
9 100 000 ₽

Закажите консультацию специалиста

Оставьте заявку
Нажимая на кнопку «Отправить заявку», Вы даете согласие на обработку своих персональных данных.
×
продажа
Что вы хотите продать?
Сколько комнат?
Тип объекта?
В каком регионе?
В каком районе Санкт-Петербурга
В каком районе Ленинградской области?

Оставьте Ваш контакт и наши специалисты свяжутся с Вами в самые кротчайшие сроки.

+7
×
новостройка
Какие районы Санкт-Петербурга Вас интересуют?
С какой целью Вы планируете приобрести квартиру?
Сколько комнат должно быть в Вашей будущей квартире?
Какой вариант отделки Вам необходим?
Когда Вы хотите заехать?
В какой бюджет хотите уложиться?

Оставьте Ваш контакт и получите подборку квартир без риска столкнуться с мошенничеством и недостроем.

+7
×
сдать
Что вы хотите сдать?
Скольки комнатная квартира?
Какой тип коммерческой недвижимости вы хотите сдать?
В каком регионе?
В каком районе Санкт-Петербурга
В каком районе Ленинградской области?

Оставьте Ваш контакт и наши специалисты свяжутся с Вами в самые кротчайшие сроки.

+7
Этот сайт использует файлы cookie для улучшения пользовательского опыта. Cookie - это небольшие текстовые файлы, которые сохраняются на вашем устройстве и помогают нам запоминать ваши предпочтения, анализировать посещаемость сайта и предоставлять более персонализированный контент. Использование файлов cookie позволяет нам сделать сайт удобнее для вас. Политика конфиденциальности
Принять Отказаться