Продажа квартир и комнат

Комнаты
Например: Массальского, 4
Ванные
2-х комнатная квартира

Полюстровский просп. м.Лесная


83.74 м2
Общая
29.17 м2
Жилая
21.07 м2
Кухня
Санкт-Петербург, Калининский р-н, метро Лесная, Полюстровский просп., 75 Продается отличная 2к в ЖК Беларт Новый современный комплекс, расположенный на границе Выборгского и Калининского районов Санкт-Петербурга. Это не просто дома. Это произведения искусства, это новый уровень, который вы заслужили. Здесь стоит жить, чтобы почувствовать себя на высоте. Здесь стоит создавать свою историю. каждый нюанс идеально продуманы для того, чтобы радовать своих жителей. Выверенная геометрия фасадов, естественная светлая природная цветовая гамма, уникальная концепция формирования жилого пространства для людей с разным стилем жизни, позволяющая создать комфортную приватную среду, планирование общественных пространств, квартир и придомовых территорий  здесь все на высоте. Ждем Вас на просмотр!
Цена
25 800 000 ₽

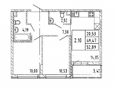
2-х комнатная квартира

Бугры пос., Тихая ул. м.Гражданский проспект


49.97 м2
Общая
20.53 м2
Жилая
14.85 м2
Кухня
Ленинградская область, Всеволожский р-н, метро Гражданский проспект, Бугры пос., Тихая ул., 3 к.1 Продам 2- комнатную квартиру с большой кухней- гостинной на 5 этаже в ЖК Новые Горизонты. Кухня- 14,85 м2. Комнаты- 10,53 м2 и 10,00 м2. Коридор- 7,38 м2. Ванна- 4,19 м2. Туалет- 2,52 м2. Дом выполнен в лаконичном стиле, фасад украшен витражным остеклением. ЖК включает в себя 3 детских сада и школу на 1375 мест и коммерческие помещения на первых этажах. Придомовая территория благоустроена пешеходными тротуарами, зелеными зонами и местами для отдыха. Закрытый двор, где установлены детские и спортивные площадки и уличные тренажеры. На территории ЖК работает служба консьержей и охраны. ЖК расположен во Всеволожском районе. В пешей доступности работают продуктовые магазины, отделения почты и банков. В пяти минутах транспортом находится «МЕГА Парнас», а также «OBI»,«IKEA» и «Ашан», в 15 минутах – курорт «Охта-парк». В радиусе пяти километров расположены метро «Парнас», «Проспект Просвещения», «Гражданский проспект» и «Девяткино». Выезд на КАД – в пяти минутах транспортом. Ждем Вас на просмотр!
Цена
7 000 000 ₽

2-х комнатная квартира

Измайловский бул. м.Балтийская


58.9 м2
Общая
29.4 м2
Жилая
15.6 м2
Кухня
Продается 2- комнатная квартира с большой кухней- гостинной в ЖК  «Галактика» расположенном рядом с наб. Обводного канала и Московским проспектом. Кухня-15,6 м2. Комнаты- 15,1 м2 и 14,3 м2. Коридор- 8,0 м2. Ванна- 3,0 м2. Туалет-1,8 м2. Дом класса «комфорт» находится сразу в двух районах: Адмиралтейском и Московском. И жить, и отдыхать в «Галактике» удобно и приятно. Рядом находятся торгово-развлекательный комплекс «Варшавский экспресс» с кинотеатром, концертной площадкой и спортивной зоной. Продовольственные и промтоварные магазины, рестораны и кафе, скверы и музеи — до всего будет подать рукой. Для обучения детей в районе открыты детские садики, школы, развивающие центры. На первых этажах в жилом квартале- помещения под магазины, салоны красоты, ремонтные мастерские и отделения банков. Есть школы, детские сады, кабинеты врачей общей практики. Ждем Вас на просмотр!
Цена
22 000 000 ₽

Затрудняетесь с выбором?

Не тратьте время на поиск и анализ множества предложений недвижимости
Мы сделаем это за вас профессионально, быстро, предложив оптимальные варианты по выгодной цене!

2-х комнатная квартира

Чарушинская ул. м.Девяткино


51.3 м2
Общая
24.4 м2
Жилая
15.1 м2
Кухня
СПб, Красногвардейский р-н, Чарушинская ул., д.26 к.1 Продается просторная 2 - комнатная квартира в ЖК  Цветной город который располагается на территории, ограниченной Пискаревским проспектом, Муринским ручьем, береговой линией реки Охты и перспективной пробивкой Северного проспекта. Есть вся необходимая инфраструктура от образовательных учреждений и тоговых комплексов до центров спортивно-досуговой деятельности. Формирование самодостаточной жилой среды, комфортной для современного человека, позволяет считать комплекс настоящим городом в городе. Благодаря близкому и удобному выезду на КАД, обеспечен быстрый путь в другие районы или загород. Перспективное продолжение Северного проспекта позволит без труда добраться до основных транспортных магистралей правобережной части Петербурга. Ждем Вас на просмотр!
Цена
9 800 000 ₽

2-х комнатная квартира

Петровский просп. м.Крестовский остров


71.9 м2
Общая
36.11 м2
Жилая
15.35 м2
Кухня
Санкт-Петербург, Петроградский р-н, метро Крестовский остров, Петровский просп., 11 к.3 Продам  уютную 2- комнатную квартиру в ЖК Neva Haus. Кухня- 15,35м2. Комнаты- 20,18 м2+15,93 м2. Коридор- 12,52 м2. Ванна- 5,48 м2. Туалет- 2,52 м2. В облицовке фасада используется клинкерный кирпич натуральных оттенков, обладающий высокой гигроскопичностью и устойчивостью к погодным условиям. Дизайн входной группы и мест общего пользования выполнен по авторскому проекту. На территории комплекса спроектированы школа, детские площадки и места для отдыха, проводятся работы по озеленению. Территория находится под круглосуточным видеонаблюдением, а входы в дом оснащены IP домофонами для контроля доступа. Для автовладельцев предусмотрен подземный, отапливаемый паркинг на 907 мест. К паркингу можно спустится на лифте. Жилой комплекс расположен на Петровском острове в районе с развитой инфраструктурой: здесь работают детские сады, школы магазины, спортивные центры, конный клуб и стадион «Петровский». Собственная благоустроенная набережная — в 5 минутах пешком. Экологическая ситуация благоприятна: в районе ЖК отсутствует транспортная загруженность дорог, а в пешей доступности находится Большой Петровский парк с прудом и зонами отдыха. Ждем Вас на просмотр!
Цена
38 200 000 ₽

2-х комнатная квартира

Петровский просп. м.Крестовский остров


73 м2
Общая
31.5 м2
Жилая
25.8 м2
Кухня
Санкт-Петербург, Петроградский р-н, метро Крестовский остров, Петровский просп., 9 к.2 Продается уютная 2- комнатная квартира в ЖК Neva Haus. В облицовке фасадов используется клинкерный кирпич натуральных оттенков, обладающий высокой гигроскопичностью и устойчивостью к погодным условиям. Дизайн парадной и мест общего пользования выполнен по авторскому проекту. Высота потолков от 3 метров. На территории комплекса школа, детские площадки и места для отдыха. Территория находится под круглосуточным видеонаблюдением, а входы в дом оснащены IP домофонами для контроля доступа. Для автовладельцев предусмотрен подземный, отапливаемый паркинг на 907 мест. К паркингу можно спустится на лифте. Жилой комплекс расположен на Петровском острове в районе с развитой инфраструктурой: здесь работают детские сады, школы магазины, спортивные центры, конный клуб и стадион «Петровский». Собственная благоустроенная набережная — в 5 минутах пешком. Экологическая ситуация благоприятна: в районе ЖК отсутствует транспортная загруженность дорог, а в пешей доступности находится Большой Петровский парк с прудом и зонами отдыха. Ждем Вас на просмотр!
Цена
38 240 000 ₽

2-х комнатная квартира

Планерная ул. м.Беговая


61 м2
Общая
32.18 м2
Жилая
13.24 м2
Кухня
Санкт-Петербург, Приморский р-н, метро Беговая, Планерная ул., 87 к.1 Продается просторная 2- комнатная квартира в ЖК «FoRest Аквилон». Жилой комплекс «FoRest Аквилон» у Юнтоловского заповедника – это городской комфорт без городских суеты и шума. Это продуманная до мелочей среда, которая дарит чувство единения с природой и вдохновляет для здорового образа жизни. Это безопасность и ежедневный полноценный отдых в одном из престижных районов Санкт-Петербурга, в 20-ти минутах езды от исторического центра города. Инфраструктура «FoRest Аквилон» бережно интегрирована с Юнтоловским лесопарком – уникальным оазисом нетронутой природы и великолепным местом для прогулок. Зеленые «клинья» заповедника проникают во внутренние закрытые дворы комплекса вместе с пением птиц и ароматами леса, даря ощущение жизни за городом. Развитая среда современного микрорайона и его отличная транспортная доступность обеспечивают все преимущества городского комфорта. Уникальная концепция благоустройства ЖК «FoRest Аквилон» предполагает интегрирование особенностей его локации в жилую среду. Усилиями ландшафтных дизайнеров Юнтоловский лесопарк как будто «прорастет» внутрь комплекса, создавая гармоничное единение цивилизации и природы. Игровые, спортивные и рекреационные зоны декорированы природными материалами. Ждем Вас на просмотр!
Цена
17 000 000 ₽

2-х комнатная квартира

Типанова ул. м.Звездная


62.85 м2
Общая
32.08 м2
Жилая
15.8 м2
Кухня
Санкт-Петербург, Московский район, метро Звездная, Типанова ул., 22 Продается большая 2- комнатная квартира с лоджией в ЖК `Дефанс` В отделке наружных стен применяется керамогранит светлых оттенков. Холлы и места общего пользования оформлены согласно авторскому дизайн-проекту. На территории комплекса расположен собственный променад с фонтаном. Для владельцев автомобилей здесь предусмотрен двухуровневый подземный паркинг на 1142 мест. ЖК расположен в престижном Московском районе с развитой инфраструктурой. В пешей доступности находится ТРК «Питер», гипермаркеты — «О`КЕЙ» и «Лента». До станции метро «Московская» 15 минут пешком, выезд на КАД находится в 15 минутах транспортом. Ждем Вас на просмотр!
Цена
21 800 000 ₽

2-х комнатная квартира

Планерная ул. м.Беговая


59.4 м2
Общая
28.5 м2
Жилая
13.3 м2
Кухня
Санкт-Петербург, Приморский р-н, метро Беговая, Планерная ул., 99 Продается уютная 2- комнатная квартира с лоджией в ЖК «Тайм Сквер». «Тайм Сквер» – жилой комплекс в Приморском районе, из окна квартиры открываться потрясающие виды на Юнтоловский лесопарк и самое высокое здание в Европе – «Лахта Центр». В динамично развивающемся районе предусмотрена вся необходимая инфраструктура, а близость зеленых зон поможет больше времени проводить на природе. Слово «Тайм» (в переводе с английского языка time – время) в названии жилого комплекса обыгрывается ключевым архитектурным решением. С высоты птичьего полета жилой комплекс выглядит как огромные часы! Жилой комплекс «Тайм Сквер» продуман до мелочей, чтобы обеспечить высокий уровень комфорта. Вход в парадную расположен на уровне земли, без ступеней и пандусов. В подъезде — просторный двусветный холл, гостевой санузел, места для хранения велосипедов и колясок, короба для игрушек и бесшумный лифт. Ждем Вас на просмотр!
Цена
15 600 000 ₽

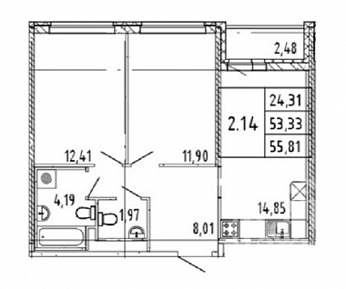
2-х комнатная квартира

Бугры пос., Тихая ул. м.Девяткино


53.33 м2
Общая
24.31 м2
Жилая
14.85 м2
Кухня
Ленинградская область, Всеволожский р-н, метро Девяткино, Бугры пос., Тихая ул., 5 к.3 Продам уютную 2- комнатную квартиру с кухней- гостинной на 5 этаже в ЖК Новые Горизонты. Кухня- 14,85 м2. Комнаты- 12,41 м2 и 11,90 м2. Коридор- 8,01 м2. Ванна- 4,19 м2. Туалет- 1,97 м2. Дом выполнен в лаконичном стиле, фасад украшен витражным остеклением. ЖК включает в себя 3 детских сада и школу на 1375 мест и коммерческие помещения на первых этажах. Придомовая территория благоустроена пешеходными тротуарами, зелеными зонами и местами для отдыха. Закрытый двор, где установлены детские и спортивные площадки и уличные тренажеры. На территории ЖК работает служба консьержей и охраны. ЖК расположен во Всеволожском районе. В пешей доступности работают продуктовые магазины, отделения почты и банков. В пяти минутах транспортом находится «МЕГА Парнас», а также «OBI»,«IKEA» и «Ашан», в 15 минутах – курорт «Охта-парк». В радиусе пяти километров расположены метро «Парнас», «Проспект Просвещения», «Гражданский проспект» и «Девяткино». Выезд на КАД – в пяти минутах транспортом. Ждем Вас на просмотр!
Цена
8 600 000 ₽

2-х комнатная квартира

Сестрорецк г., Приморское шос. м.Беговая


45.2 м2
Общая
30.7 м2
Жилая
6.4 м2
Кухня
(110) Продается 2 ком. кв в хорошем состоянии, в центре города Сестрорецка. Вид из окон на озеро Разлив. Магазины, школа, детский садик, поликлиника в шаговой доступности. Остановки общ. транспорта (5 мин. пешком), до электрички 20 мин. пешком или 7 мин. на транспорте. До Финского залива и пляжей -15 мин пешком, до Курорта - 10 мин. пешком, до озера Разлив - 5 минут пешком.
Цена
7 350 000 ₽

2-х комнатная квартира

Мурино г., Екатерининская ул. м.Девяткино


42.08 м2
Общая
19.47 м2
Жилая
11.89 м2
Кухня
Ленинградская область, Всеволожский р-н, метро Девяткино, Мурино г., Екатерининская ул., 11 Продается двухстроронняя 2- комнатная квартира  с удачной планировкой  в ЖК Лампо в 15 минутах пешком от метро и ж/д станции «Девяткино». Дом спроектирован по современным финским технологиям с использованием сборных железобетонных панелей. Придомовая территория благоустроена зелеными зонами, детскими площадками, местами для отдыха и пешеходными тротуарами. Жилой комплекс расположен на северо-западе от Санкт-Петербурга в городе Мурино. В районе есть детские сады, школы, поликлиники, продуктовые магазины, кафе и рестораны. За 15 минут на автомобиле можно добраться до Капральева парка, за 25 минут — до парка «Зубровник» и озер в Токсово. В 30 минутах транспортом расположен горнолыжный курорт «Охта-парк», а в 20 минутах на автомобиле — ТРЦ «МЕГА Парнас». Жилой комплекс находится в 15 минутах пешком от метро и ж/д станции «Девяткино», выезд на КАД — в 10 минутах транспортом. Ждем Вас на просмотр!
Цена
6 400 000 ₽

Закажите консультацию специалиста

Оставьте заявку
Нажимая на кнопку «Отправить заявку», Вы даете согласие на обработку своих персональных данных.
×
продажа
Что вы хотите продать?
Сколько комнат?
Тип объекта?
В каком регионе?
В каком районе Санкт-Петербурга
В каком районе Ленинградской области?

Оставьте Ваш контакт и наши специалисты свяжутся с Вами в самые кротчайшие сроки.

+7
×
новостройка
Какие районы Санкт-Петербурга Вас интересуют?
С какой целью Вы планируете приобрести квартиру?
Сколько комнат должно быть в Вашей будущей квартире?
Какой вариант отделки Вам необходим?
Когда Вы хотите заехать?
В какой бюджет хотите уложиться?

Оставьте Ваш контакт и получите подборку квартир без риска столкнуться с мошенничеством и недостроем.

+7
×
сдать
Что вы хотите сдать?
Скольки комнатная квартира?
Какой тип коммерческой недвижимости вы хотите сдать?
В каком регионе?
В каком районе Санкт-Петербурга
В каком районе Ленинградской области?

Оставьте Ваш контакт и наши специалисты свяжутся с Вами в самые кротчайшие сроки.

+7
Этот сайт использует файлы cookie для улучшения пользовательского опыта. Cookie - это небольшие текстовые файлы, которые сохраняются на вашем устройстве и помогают нам запоминать ваши предпочтения, анализировать посещаемость сайта и предоставлять более персонализированный контент. Использование файлов cookie позволяет нам сделать сайт удобнее для вас. Политика конфиденциальности
Принять Отказаться